BLOG-REALISATIONS
๐URGENT ๐ •
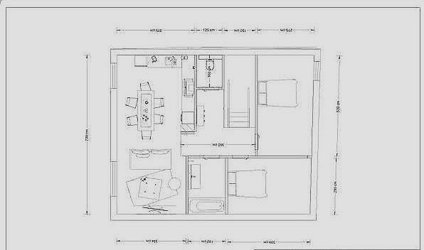
Voici une facette un peu méconnue de mon métier (qui va quelque fois au delà des choix de couleurs et de matériaux.) C’est aussi ça, le cœur de mon travail : transformer des espaces vides en lieux inspirants : •
Il y a 2 jours j’ai été contacté par un investisseur immobilier qui transforme une vieille maison en un espace locatif moderne et fonctionnel.
•
Impossible pour lui de visualiser les espaces! Alors en 2 jours j’ai élaboré les plans d’aménagement pour optimiser chaque m2.
•
Je lui ai également meublé rapidement certaines pièces afin qu’il puisse bien se rendre compte des surfaces occupées.
•
Ces plans vont également permettre aux futurs locataires de visualiser le lieu avant la fin des travaux.
•
Vous aussi vous avez des difficultés à projeter lors d’une rénovation ?
Alors pas d’hésitation













